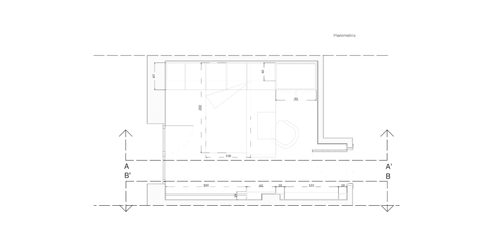
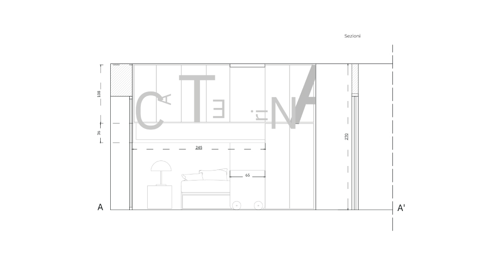
Camera ragazzi

Progettazione di una camera per bambina e bambino.
L’ambiente di dimensioni limitate ha richiesto un approccio progettuale che mirasse a ottimizzare lo spazio attraverso il disegno di arredi su misura. L’armadio a ponte ha permesso di inserire un letto e una scrivania con scrigno che, attraverso delle rotelle, è possibile spostare all’interno dell’ambiente in funzione delle attività svolte.

Progetto per Arch. Fernando Longo