Ristorante Zefiro, Lecce

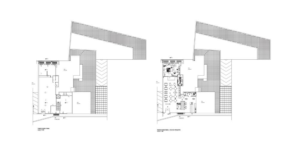
Progetto di Interior per ristorante Zefiro a Lecce.
L’idea progettuale è stata guidata dalla volontà di evocare l’atmosfera di un ambiente marittimo per un ristorante prettamente di pesce. Questo intento è stato perseguito attraverso l’utilizzo di arredi e materiali dalle tonalità chiare, come per la lunga parete della sala decorata con una carta da parati con motivi d’acqua, le lampade a forma di nassa sul bancone del bar e il legno marino per le superfici.

Progetto per Arch. Lucia Bianco